This stunning home in the heart of Kramersdorf is currently under construction, with estimated completion by end of October 2025.
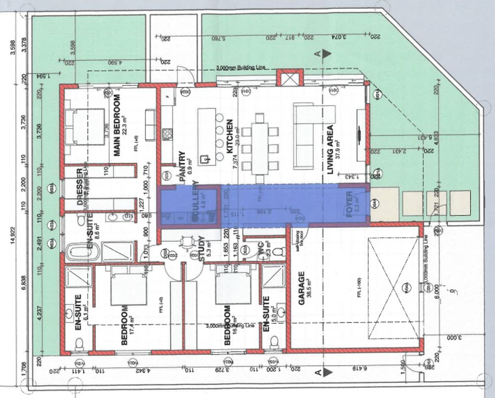
The property offers 407sqm erf size with a 222sqm house, designed with modern finishes and a functional layout ideal for family living.
Features include:
Open-plan kitchen, lounge & dining area
Separate scullery & pantry
Study / home office
Guest toilet
Double garage
Inside braai area – perfect for entertaining
Alarm system for peace of mind
Roof with open trusses for a spacious feel
Please note: The images used are from a similar completed project by the same developer and showcase his quality finishes. The advertised property will have a different layout (see attached plans).
Don’t miss this opportunity to own a brand-new modern home in Kramersdorf.
 
  
  
  
  
  
  
  
  
  
  
  
  
  
  
  
  
  
  
  
  
  
  
  
  
  
  
  
  
  
  
  
 