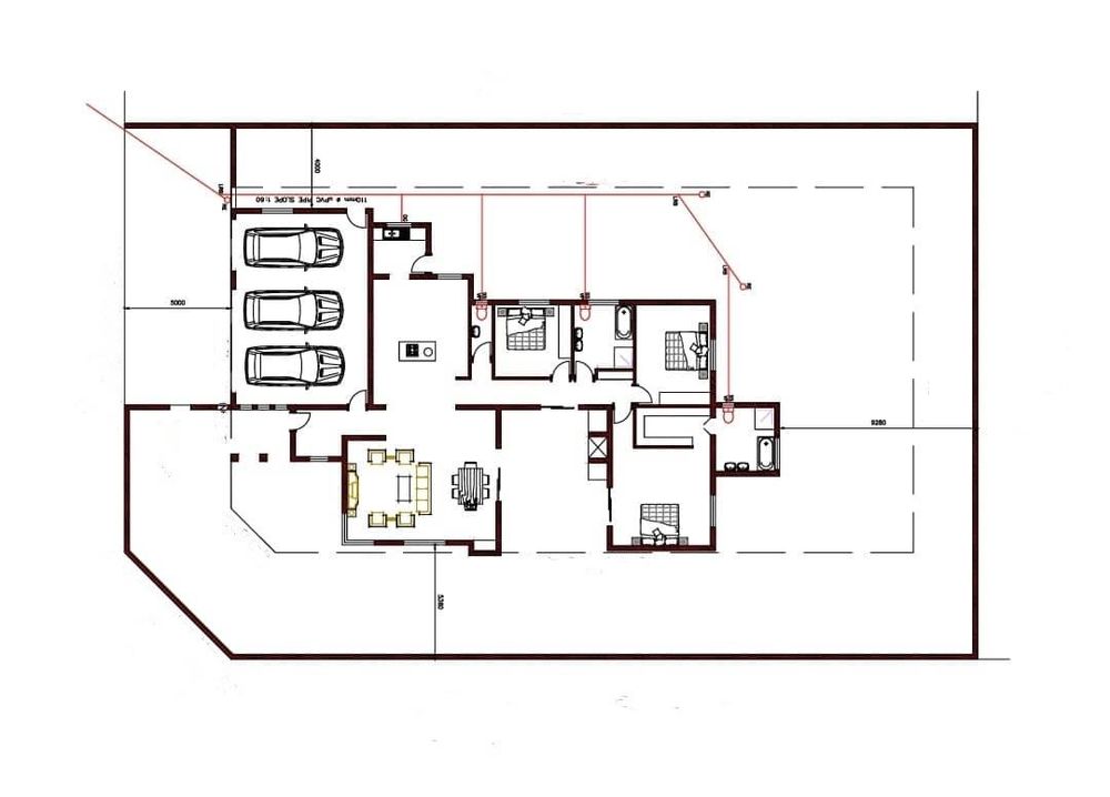
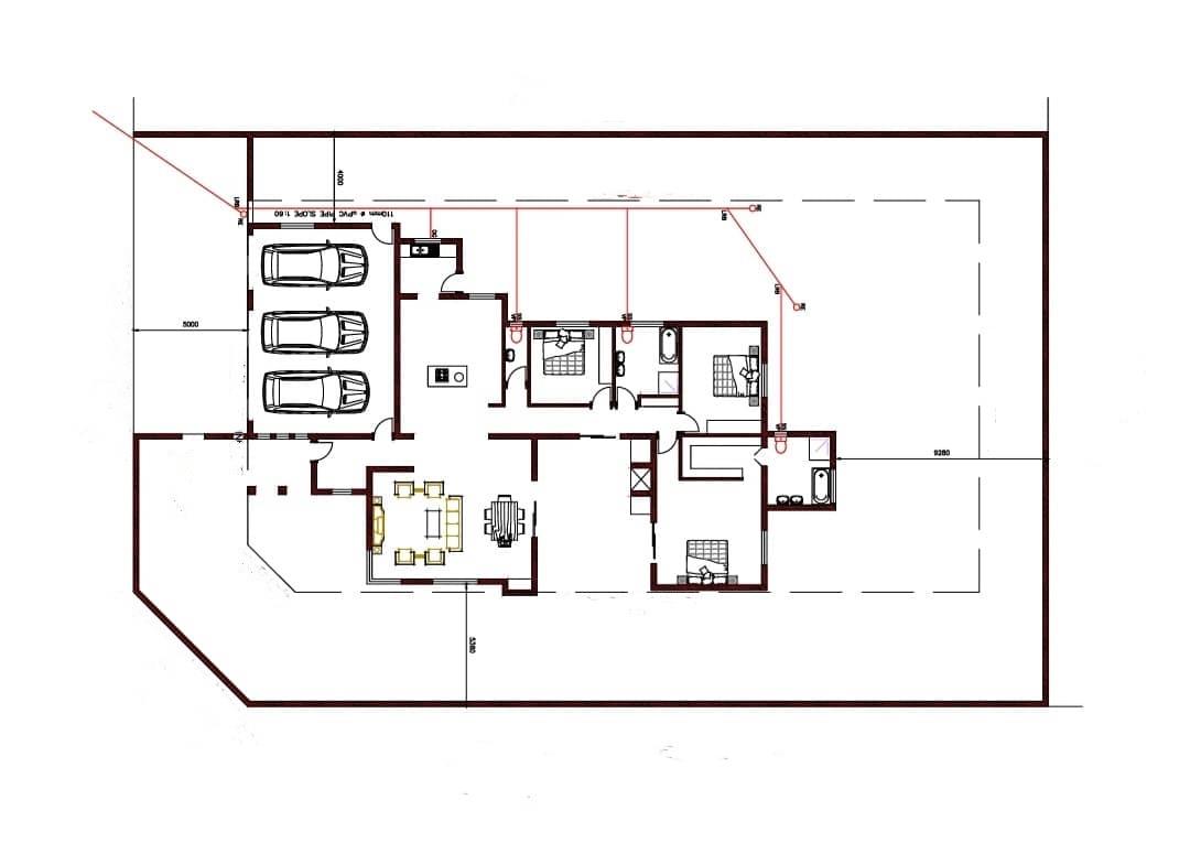
A brand-new 3-bedroom home, set to begin construction in April 2025. The house features a well-equipped kitchen with a scullery, and an open plan living and dining area with exposed wood trusses for a stylish touch. Enjoy both indoor and outdoor BBQ areas, a wind-protected courtyard, and a guest toilet for convenience. The property also includes 3 garages, an alarm system, and prepaid electricity.
The pictures attached are from a previous house built by the same developer, showcasing the expected style and quality of this new home.
Erf size: 990 sqm | House size: 260 sqm
Price: N$ 3,890,000
 
  
  
  
  
  
  
  
  
  
  
  
  
  
  
  
  
  
  
  
  
  
  
  
 