This soon-to-be-constructed residence on, set on a well-positioned plot in Extension 15, blends practical family living with elegant modern finishes — the kind that speak for themselves.
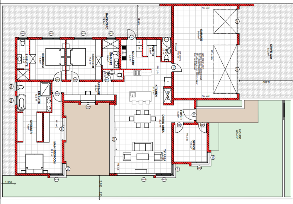
Step through the front door into a welcoming foyer that opens to an expansive living space. With a seamless flow between the dining area, TV lounge, and stylish open-plan kitchen, this home is ideal for both relaxed family nights and entertaining guests. A separate scullery and walk-in pantry ensure the kitchen stays sleek and clutter-free.
The house features three generously sized bedrooms, each with its own en-suite bathroom, offering privacy and comfort for everyone. The main bedroom suite is a private retreat — complete with a walk-through dressing area and spacious en-suite.
An added bonus is the dedicated home office, perfect for remote work or study, positioned to feel connected yet private.
Built by a reputable developer known for attention to detail, this home will showcase the same high-quality craftsmanship as seen in previous successful projects.
 
  
  
  
  
  
  
  
  
  
  
  
  
  
  
  
  
  
  
  
  
  
  
  
  
  
  
  
  
  
  
  
  
  
  
  
  
 