Introducing SwakopMint, a fresh and exciting new development offering the perfect blend of modern design and coastal living. This exclusive complex will consist of 15 single-story units, available in three different types: Type A, Type B, and Type C. Each unit is designed with practicality and style in mind, ensuring comfort and convenience for all residents.
Single-Story Living: Enjoy easy, accessible living with well-planned layouts tailored to suit a variety of lifestyles.
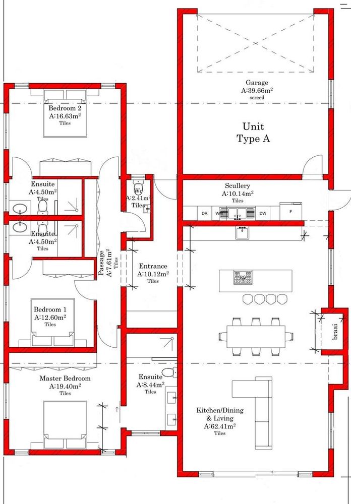
Choice of Unit Types: Choose between Type A, Type B, and Type C, varying in sizes from 155m2, 163m2 and 226m2, each with unique features and ample space to meet your needs.
Prime Location: Ideally situated close to the prestigious Pro Ed Academy and just a short distance from the beach, offering a lifestyle of convenience and tranquility.
Modern Design: These homes will feature open-plan living spaces, quality finishes, and a layout perfect for both entertaining and everyday living. Idea in mind to create a top-quality unit at an affordable price in a secure complex. Something unique!
Construction is set to begin in early 2025, and with only 15 units available, this is an opportunity not to be missed. See the attached photos for a sneak peek at what’s to come and contact us for more detailed information.
Exclusive Mandate
 
  
  
  
  
  
  
  
  
  
  
  
 